Another thing thing that REALLY bothers me about apartments floorplans is "Unit Type" creep.
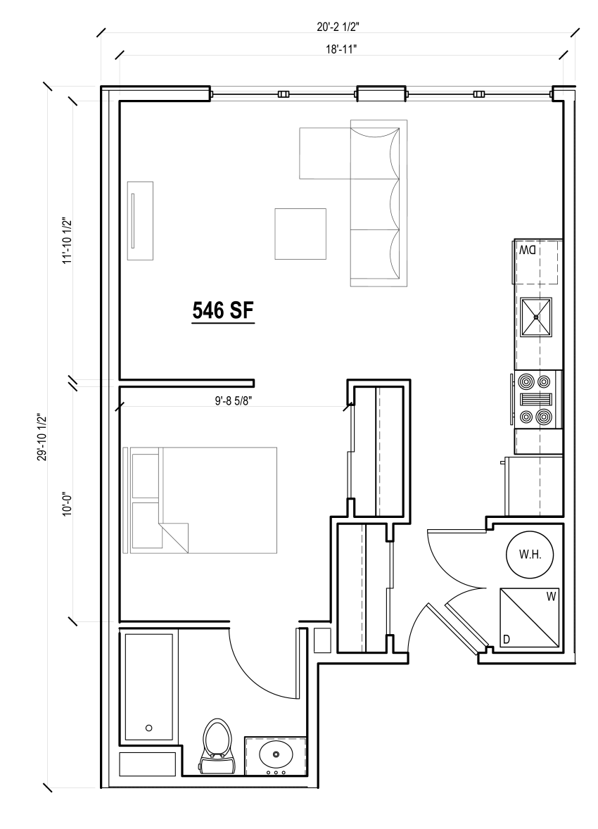
Look at this floorplan. Is this a Studio or a 1 BR to you?
Look at this floorplan. Is this a Studio or a 1 BR to you?
Studio or 1 Bedroom?
This is a good floorplan at 20'x 30'. It occurs across the country and is listed as a Studio, 1BR or Jr 1 BR. The difference has almost nothing to do with local laws or what is a "legal bedroom." It has to do with our old enemy .. bad incomplete data and developers opinion/gut.
When you pull rent comparable for a new project, there are 2 ways to look at them. Face Rent ($$ amount paid), or Rent/SF ($$ amount divided by size). This guides what you can charge for your unit. Ideally, you want projected rent to fall within the bounds of rent in the market.
The issue becomes what KIND of units are comparable? Enter Unit Type Creep. Developer picks whatever is more advantageous for the story ... not for users/tenants but for financing. Sometimes %/SF and others Face Rent.
The problem is it's the owner's choice, not objective data.
The problem is it's the owner's choice, not objective data.
For studios, Rent/SF is almost always higher than 1 BRs. But on this subject floorplan if I called it a studio, then the face rent would likely show it to be hundreds of dollars more expensive than market rent - bc at 550 SF it's actually quite large for it's "Unit Type."
But if I call it a 1 BR this unit looks like a deal. Building new product that only needs to hit AVG market rents is great for Excel. Great metrics = deal funded.
Unit Type Creep doesn't go in 1 direction. It depends on comps. 1 BR Den. 2 BR 1 BA. Studio w/Office. All the same.
Unit Type Creep doesn't go in 1 direction. It depends on comps. 1 BR Den. 2 BR 1 BA. Studio w/Office. All the same.
We need a universal and data driven language to better describe a space/unit/apartment. Right now, the primary filters are the same across Zillow, Redfin, and all apartment ILS sites: # of bedrooms (defined by owner) and Square Feet
It's opaque for tenants & kills online leasing
It's opaque for tenants & kills online leasing
Again, I'm not criticizing anyone. Product like the subject floorplan is definitely good for certain people. So it could be thoughtfully done. But it often isn't.
And it's always unclear to tenants what a building "means" by a 1 bedroom. That's bad for all of us.
And it's always unclear to tenants what a building "means" by a 1 bedroom. That's bad for all of us.
Read on Twitter